PAIGE WEISHAAR



HERITAGE CENTER
The spring of my sophomore year, I developed an interactive heritage center located in the heart of TCU's campus to draw students and individuals within and around the Fort Worth community to gather, share, and learn about various cultures and heritages.
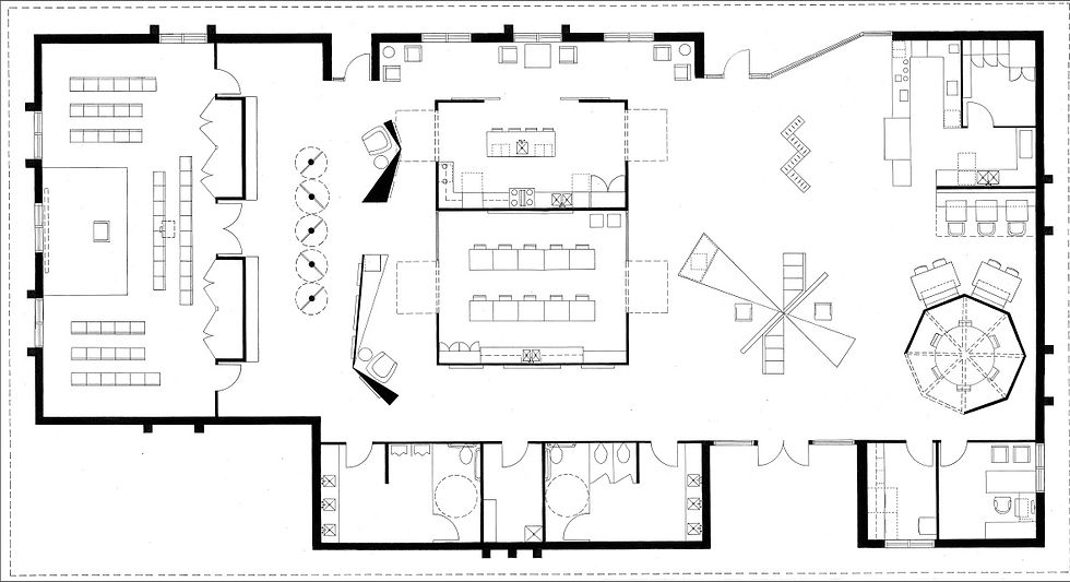
Based off of the concept of flight paths, which have connected one end of our planet to the other, I designed Cultural Pathways Heritage Center to link various cultures together. In order to illustrate the idea of flight paths, connections, and intersections; the center features angled walls, intersecting beams, and an immense light sculpture that serves as wayfinding to direct guests around the facility. The center also includes a multipurpose room, art studio, kitchen, cafe, private office, and conference room all in an open-concept floor plan with glass walls and moveable partitions in order to promote culture through food, art, and personal collaboration.
After space planning and hand drafting my floorplan, I rendered two of the major spaces by hand as well as in SketchUp. I later assembled the construction documents for this project in AutoCAD, and presented my final design to a panel of judges.